Talbot Centre
-
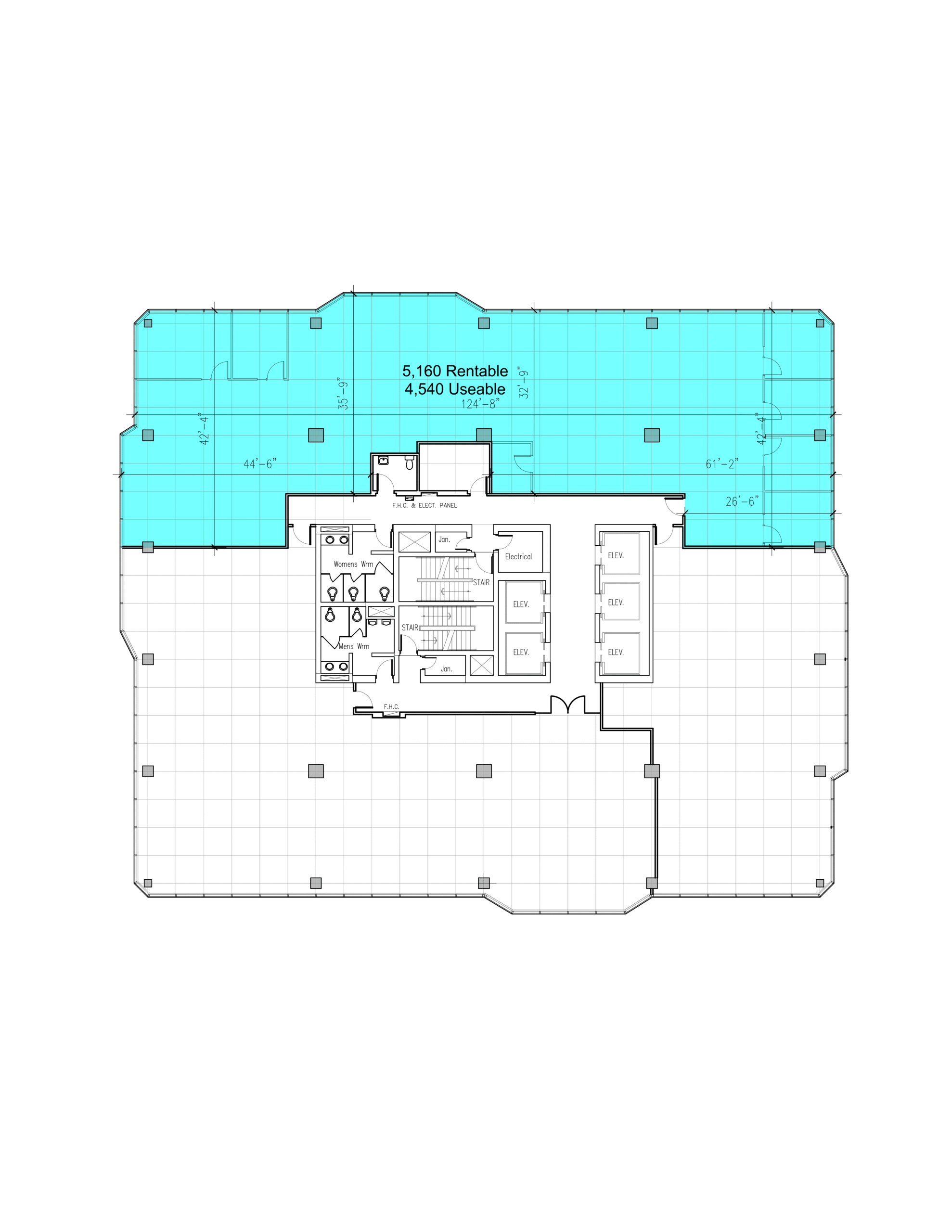
Suite Details
- Available: Immediately
- Floor: 9
- Size: 5,160 ft 2
- Type: Office
Contact Details
519-914-2766
-
Suite Details
- Available: Immediately
- Floor: 9
- Size: 2,481 ft 2
- Type: Office
Contact Details
519-914-2766
Commercial buildings designed with your needs in mind. Reach out to us today to book a viewing.