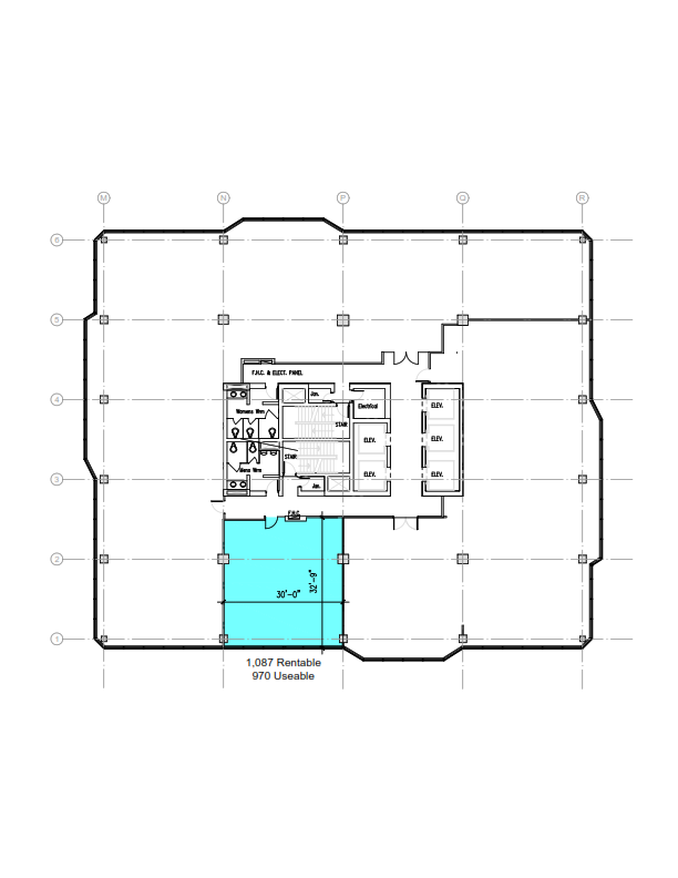
148 Fullarton Street Office Space Availability on the 14th Floor at 148 Fullarton Street 148 Fullarton Street Suite Details Available: Immediately Floor: 14 Size: 1,087 ft 2 Type: Office Contact Details 519-914-2766 nadine@summitproperties.ca Contact Form Download PDF