519.914.2766
Tenant Portal
Commercial Login
Residential Login
Apartments for Rent
View Properties
Apartment FAQs
Tenant Testimonials
Commercial Spaces
Commercial Properties
Commercial FAQs
About Us
About Summit Properties
Blog & News
Contact
148 Fullarton
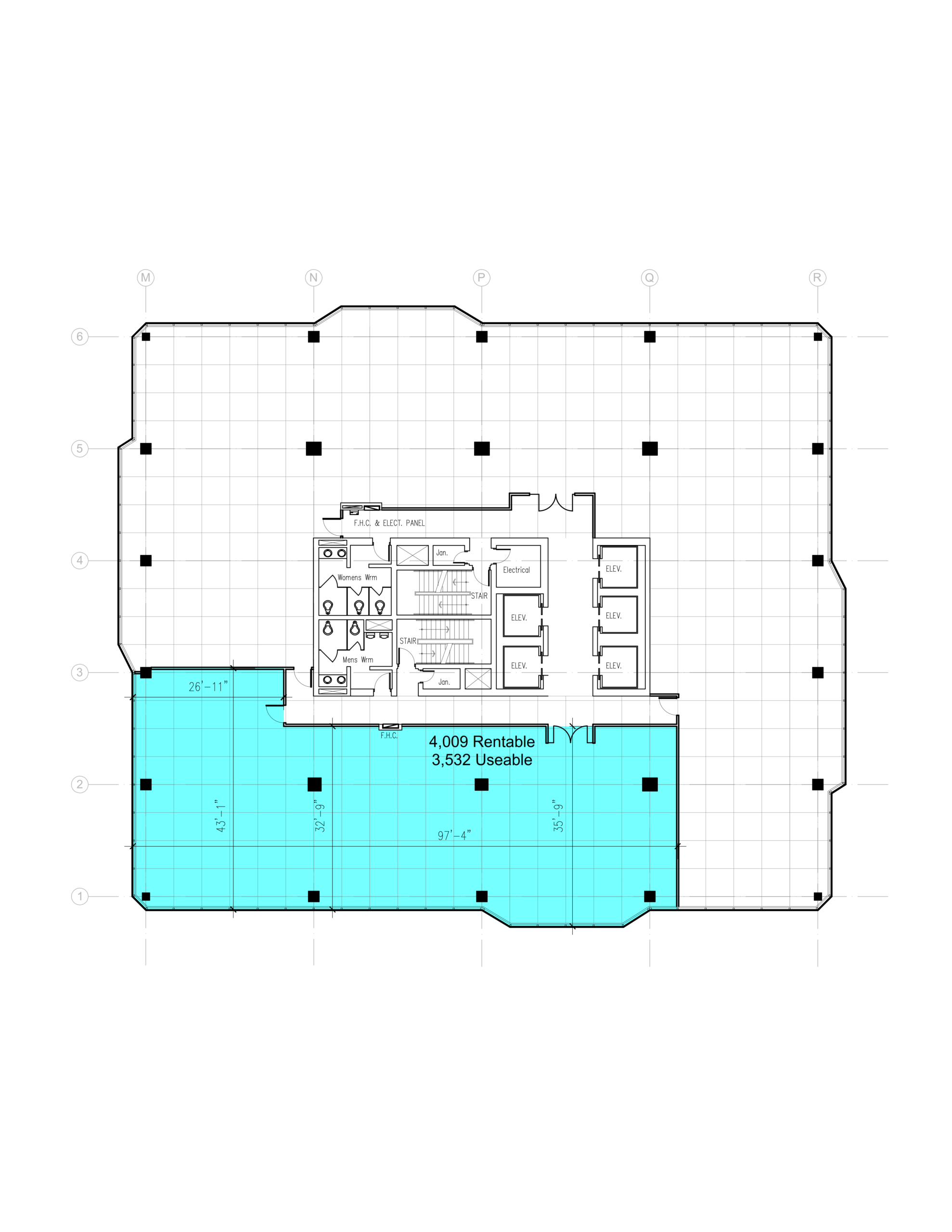
Office Availability for the 12th Floor
Talbot Centre
Book a Viewing Today!
Commercial buildings designed with your needs in mind. Reach out to us today to book a viewing.
LinkedIn
This field is for validation purposes and should be left unchanged.
Name
*
First
Last
Email
*
Phone
Message
*
CAPTCHA